Contáctanos
VIVIR POR MÁS
EN EDIFICIO PUERTA DEL SOL 83
- 11 pisos y solo 4 departamentos por nivel, lo que garantiza privacidad y exclusividad.
- Ventanas con termopanel y quiebre térmico, que mejoran el confort térmico y acústico.
- Hall de acceso con revestimientos en mármol, que otorga una bienvenida distinguida.
- Control de acceso inteligente (Smartkey) para mayor seguridad y comodidad.
- 2 ascensores de última generación, rápidos, eficientes y silenciosos.
DESCRIPCIÓN
EDIFICIO PUERTA DEL SOL 83
Vive con diseño, confort y exclusividad en el corazón de Las Condes
Ubicado en un tradicional y consolidado barrio de Las Condes, Edificio Puerta del Sol es un proyecto de alto estándar que combina elegancia, modernidad y tecnología. Respaldado por la reconocida trayectoria de A4 Arquitectos y la experiencia de Constructora Mena y Ovalle, este proyecto está pensado para quienes buscan más diseño, más confort y una mejor calidad de vida.
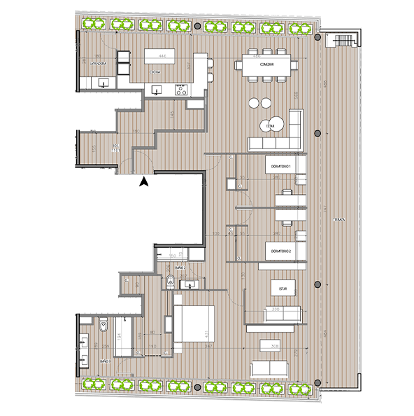
PLANTAS
TIPO 1
TIPO 2
DEPARTAMENTO 201
DEPARTAMENTO 301
DEPARTAMENTO 401 al 1001
DEPARTAMENTO 1101
DEPARTAMENTO 202
DEPARTAMENTO 302
DEPARTAMENTO 402 al 902
DÚPLEX 1002
TIPO 3
TIPO 4
DEPARTAMENTO 203
DEPARTAMENTO 303
DEPARTAMENTO 403 al 1003
DEPARTAMENTO 204
DEPARTAMENTO 304
DEPARTAMENTO 404 al 904
DÚPLEX 1004
2 y 3 DORMITORIOS
CARACTERÍSTICAS Y EQUIPAMIENTO
Departamentos
Cocina
Baños
Diseño interior que eleva tu día a día
Diseño moderno y funcional
Confort y estilo en cada detalle
- Puerta principal enchapada en madera de alta calidad.
- Puertas interiores de piso a cielo, que aportan amplitud visual.
- Altura interior de 2,45 m, superior al estándar del mercado.
- Piso vinílico tipo madera en living, comedor y dormitorios: cálido, elegante y fácil de mantener.
- Ventanas con termopanel, que brindan mayor aislamiento.
- Calefacción eléctrica, eficiente y controlable.
- Ciso vinílico tipo madera, resistente y acogedor.
- Refrigerador panelable, que se integra perfectamente al mobiliario.
- Cubierta de cuarzo y lavaplatos bajo cubierta, fácil de limpiar y estéticamente impecable.
- Campana extraíble, horno eléctrico y encimera vitrocerámica, para una experiencia culinaria de alto nivel.
- Grifería cromada moderna, de líneas simples y elegantes.
- Piso y muros revestidos en porcelanato claro, que amplifican la luz y el espacio.
- Ducha en obra con shower door de cristal, elegante y funcional.
- Vanitorio con mueble en melamina color madera clara, superficie superior tipo piedra gris claro y herrajes negros que aportan carácter y contraste.
Sector Golf Oriente: tradición, elegancia y plusvalía
Vivir en el sector Golf Oriente de Las Condes significa estar conectado a lo mejor de la ciudad, en un entorno residencial consolidado, con excelente conectividad, servicios de primer nivel, áreas verdes y un ambiente de prestigio.